ZINEN NATUREHOOD PROJECT
Reservation
Loading
01

Concept

バイクが写っている写真

Show Garage

愛車と過ごす、 海辺のガレージステイ。

「The Garage」のシャッターを開けると、
潮の気配と、海へ抜ける道が現れます。

糸島の自然を堪能した後は、
お気に入りの愛車とともに、
水面に沈むサンセットを眺めるひとときを。

何にも縛られない、非日常。
贅沢な時間を、いつまでもお楽しみください。

室内に駐輪したバイク越しに海を眺める
室内のガレージに駐輪したバイクを見る
02

Living Dining Kitchen

団欒の時間を過ごす、
憩いの場所

03

Bed Room (1F)

ガレージ内の愛車を眺めながら
就寝する事もできます

04

Bed Room (2F)

グループ宿泊にも嬉しい
2つの寝室(ロフト付)

05

Bath

海を臨むラドン温泉

06

Terrace

砂浜直結の
BBQもできるテラス

07

Veranda

サンセットを臨む
特別な空間

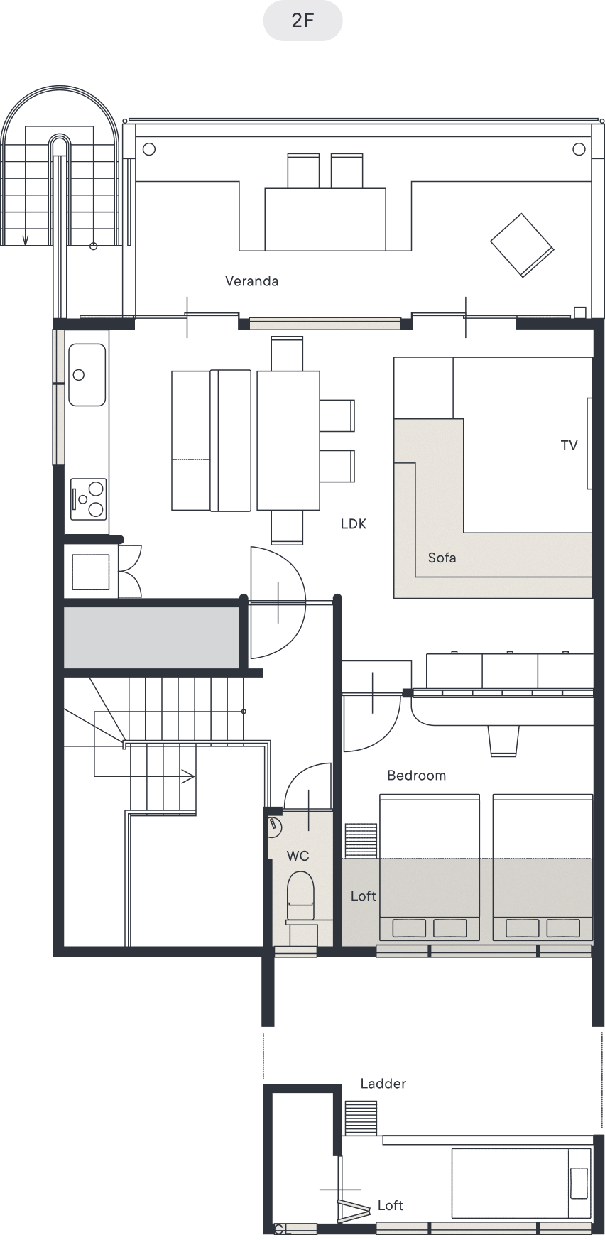
08 Floor map

The Garage Floor map 1F The Garage Floor map 2F
宿泊定員
8名
※未就学児のご宿泊はご相談下さい
間取り
リビングダイニングキッチン / 寝室 / 和室 / ロフト / パウダールーム / 浴室 / テラス / ベランダ
内観写真
In/Out
In 15:00~ / Out 10:00
The Garage Floor map 1F The Garage Floor map 2F
The Garage Site Plan

The One

大きなひとつの空間で、
海とつながるステイを。